Plans And Analysis
- LAND LOCATION
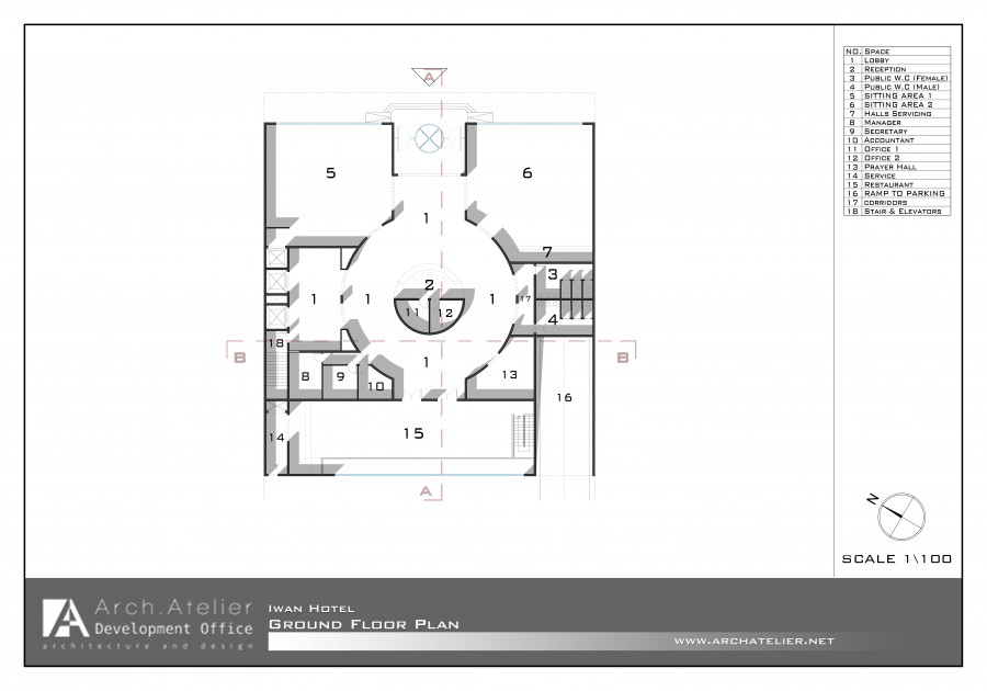
- GROUND FLOOR PLAN
- TYPICAL FLOOR PLAN
- BASEMENT FLOOR PLAN
- GROUND FLOOR ZONE PLAN
- TYPICAL FLOOR ZONE PLAN
- BASEMENT FLOOR ZONE PLAN
- BUILDING AREA SCHEDULE
- ROOM TYPES
- ROOM TYPES
- SITE PLAN
- SECTION AA
- SECTION BB
- MAIN ELEVATION
- FACADE ELEVATION














